- Что учесть при планировании
- Расположение дома по сторонам света
- Направление ветра и освещенность
- Планировка дачных участков нестандартной формы и с перепадом высот
- Планировка дачного участка неправильной формы
- Планировка дачного участка с уклоном
- Особенности планировки участка 15 соток
- Планировка участка. Где разместить огород?
- Что нужно учитывать при зонировании дачи
- Распланируйте объекты по сторонам света
- Отметьте на плане геодезические показатели
- Учтите на плане нормативные расстояния
- От жилого дома до других построек
- От границ с соседями до
- Большое значение при планировании расположения построек имеют
- Правила зонирования участка 15 соток с примерами
- Схема, как распланировать участок 15 соток
- Дом по центру
- Дом в глубине сада
- Обследование территории
- Правила посадки и ухода за растениями
- Видео обзор хорошего ландшафта
- Какой проект выбрать
- Как распланировать участок 10 соток
- Как обыгрывать разные формы наделов
- Правила установки жилого дома
- Где обустроить въездную зону
- Что делать с садом и огородом
- Куда поставить хозяйственные постройки
- Где обустроить место для отдыха
- Как разграничить пространство
- Правильное расположение котельной
- Стандартные схемы для планировки 10 соток
- Стили планирования
- Регулярный стиль
- Ландшафтный стиль
- Смешанный стиль
- Этапы планирования
- Соблюдение всех нормативов.
- Планировка должна быть поэтапной
- Как декорировать участок
- Дорожки
- Обустройство склона
- Живая изгородь от ветра
- Клумбы
- Декоративный пруд
- Планировка участка. Выбор дизайна
- Нюансы планирование по форме
- Узкий прямоугольный участок
- Квадратный
- Треугольный правильной или не правильной формы
- Участок на склоне
- Сложный многоугольник
- Круглый участок
- Пруды и бассейны
- Необычные распланировка дачного участка 6 соток, схемы, фото
- Где будет стоять дом
- Преимущества и недостатки домов с баней и гаражом
- Размещение огородных грядок
- Программы для 3D проектирования
- Простыми программами считаются
- Профессиональные версии
- Где поставить гараж
- Варианты планирования (фото)
- Сам себе ландшафтный дизайнер
- Как расположить другие постройки
- Размещение строений на участке
- Баня
- Беседка
- Парковочное место
- Размещение особых объектов
- Зона отдыха
- Освещение
- Советы по планировке дачного участка
- Как разделить участок на зоны
- Зона хозяйственных построек
- Сад и огород
Что учесть при планировании
Планировка будущей усадьбы зависит от множества факторов: рельефа, почвы, уровня залегания грунтовых вод, направления ветров и освещенности места.
- Рельеф влияет на расположение будущих построек, размещение сада и цветников.
- Почва и ее кислотность — на выбор растений, которые смогут дать урожай. Возможно, вам придется облагородить землю торфом или черноземом, чтобы посадить именно те сорта, для которых данная почва не подходит.
- Обязательно нужно определить уровень залегания грунтовых вод. Лучшее время для этого показателя — лето. Если глубина ниже 2 метров, на вашей почве можно выращивать почти любые растения. А если выше, то придется выбирать либо выносливые сорта, либо делать глубокий дренаж. Еще один вариант — поднимать уровень земли.
Расположение дома по сторонам света
Теперь приступаем к главному — планировке дома и его ориентации по сторонам света. Это нужно сделать, чтобы в холодное время года сохранять в помещениях тепло, а в жару — прохладу.
- С южной стороны хорошо поставить наибольшее количество окон, а также устроить террасу, потому что на юге всегда больше света, даже зимой. У южной стены можно спланировать также и ванную комнату. К строительству загородного особняка нужно отнестись очень ответственно!
- С северной стороны дом желательно делать без окон — так жилище будет лучше сохранять тепло. В этой части стоит распланировывать технические помещения, гараж, котельную, то есть помещения, где хозяева не будут находиться постоянно.
- Самая ценная сторона — восточная, потому что с восходом солнца здесь всегда будет приятный свет. В этой части дома можно расположить кухню, столовую, спальню, комнаты для отдыха или занятий спортом.
- Западная сторона считается наиболее влажной, поэтому она всегда прохладная. Здесь хорошо размещать лестницы, коридоры, кладовки.
Направление ветра и освещенность
Очень важно понять степень освещенности вашего владения, чтобы подобрать те растения, которые смогут у вас расти. Для этого установите шест высотой с дерево и понаблюдайте за тенями: зарисуйте их в 9 утра, 12 дня и 17 часов вечера. Так вы узнаете, в каких местах солнце светит только в утренние часы, в каких — только в вечерние. В зависимости от этого будете подбирать тенелюбивые или солнцелюбивые сорта деревьев и кустарников. Если поставить шест высотой с дом, то можно понять, куда будет падать тень от жилого дома.
Наиболее затененную часть стоит распланировать для хозяйственных построек и мест отдыха, а самую освещенную — под теплицы и грядки. Там, где соотношение света и тени наиболее оптимально, оставьте для плодовых кустарников и клумб. Направление ветра тоже имеет большое значение. Возможно, придется посадить кустарники или устроить дополнительные ограждения, чтобы некоторые зоны отдыха оградить от сквозняков.
Планировка дачных участков нестандартной формы и с перепадом высот
Удобно планировать участок правильной прямоугольной формы на идеально ровной площадке. Не беда, если достался участок с острым углом, в виде трапеции или узкий и длинный. Участок на склоне на первый взгляд обескураживает. Все огрехи формы дачного участка, как и перепад высот можно исправить с помощью грамотного ландшафтного дизайна. А если постараться и привлечь фантазию, то недостатки территории эффектно превратятся в достоинства.
Планировка дачного участка неправильной формы

Острый угол участка можно визуально срезать, посадив в углу композицию из декоративных деревьев и кустарников. Хвойная группа из пихты корейской, скальных голубых можжевельников и раскидистой тсуги превратит несуразный угол в зону хвойного мини леса привлекающего взгляд контрастом форм, размеров и оттенков зелёного круглый год. Соседи, глядя на ваши элегантные хвойники, пожалеют, что их идеальный по форме участок не имеет острого внутреннего угла.
Не хотите хвойники, посадите грецкий орех или лещину бордоволистную. Беседка, пергола со скамейкой и столиком, — вариантов облагораживания острого внутреннего угла множество, главное, не размещать в них крупные постройки.
Есть общее правило планировки дачных участков неправильной формы: фасад дома должен смотреть на широкую сторону границы участка. Избегая прямоугольных форм и соединив все зоны извилистыми дорожками, легко придать ландшафту гармоничный вид.
Длинный и узкий участок укоротить и расширить возможно только визуально. Изучив нормативы, размещаем на схеме планировки дачного участка дом с короткой торцевой стороны ближе к северу, чтобы тень от дома не закрыла всю территорию.

Извилистые дорожки, соединяющие зоны, располагаем поперечно, это визуально расширит участок. Декоративные посадки, сконцентрированные по краям участка, могут быть выполнены в японском, средиземноморском или альпийском стиле, в зависимости от предпочтений хозяина.
Все эти стили хороши тем, что воссоздать настроение и тему той или иной географической местности возможно на ограниченном, вытянутом в плане участке земли.
Подбирая растения помним, что холодные оттенки зрительно кажутся дальше, поэтому проектируем их вдоль продольных сторон участка. Визуально расширить участок можно с помощью многоярусных посадок. Чем ближе к стене забора, тем выше уровень растений. Это не все способы визуальной коррекции узкого участка.
Определяемся с необходимыми зонами, стилями, предпочтениями растений и даём волю творчеству.
Планировка дачного участка с уклоном
Приобрели вы участок на склоне осознанно или случайно, методы работ по благоустройству и планировке предстоят более затратные, чем на участке без перепада высот.

Обследовав территорию с уклоном, мы выяснили угол уклона, направление движения сточных вод, состав грунта и расположение участка по сторонам света. На схеме планировки дачного участка дом расположим в верхней части склона. Так обезопасим фундамент и цоколь от излишней влаги.
Перед выравниванием участка и формированием террас, необходимо смонтировать систему дренажа. Вид дренажной системы выбирается исходя из глубины залегания грунтовых вод, угла уклона и характеристики грунтов. Система дренажа обеспечивает отвод грунтовых и поверхностных вод, разрушающих грунт и повреждающих подпорные стенки.
Участок с наклонным рельефом удобен для создания искусственных водопадов и ручейков. Выкопать внизу участка пруд, установить насос и систему циркуляции воды проще, чем может показаться на первый взгляд.
Спланировав склон на террасы и укрепив их подпорной стенкой из натурального камня, легко оформить участок в природном или альпийском стиле, добавив камней и альпийских растений. Ступеньки из натурального камня, соединяющие террасы, гармонично впишутся в ландшафт и украсят сад.
Особенности планировки участка 15 соток
С чего начать
Правила посадки и уход за растениями
Планировка участка. Где разместить огород?
На заметку:
В такую смену овощных культур включите также и садовую землянику, что даст больше возможностей маневрировать земельными площадями огорода.
«География» расположения огорода должна учитывать также и другие факторы: хорошую защищенность от северных и господствующих для данной местности ветров, желательна повышенность рельефа, хотя капусте и корнеплодам можно отдать и пониженные участки земли.
Сегодня каждый желающий может возвести постройку на личном земельном владении. Расположение гаража на участке зависит не только от желаний и нужд владельца, государственные документы регламентируют вопросы возведения капитальных и временных строений. Законодательно зафиксированы правила (учитывающие тип земельного участка и другие особенности) исходя из которых выбирают место под строительство гаража на частной территории.
Перед тем как построить гараж на дачном участке, изучают строительные нормы, экологические и противопожарные требования, градостроительные и санитарные нормативы. Граждане обязаны получить пакет документов, разрешающих проведение работ и размещение объектов в указанном месте, а потом переходить к возведению гаражей на придомовой территории.
Что нужно учитывать при зонировании дачи
Начните продумывать организацию дачного участка с оценки его расположения и других особенностей.
Распланируйте объекты по сторонам света
В северной части дизайнеры рекомендуют высаживать высокие деревья (не плодовые), располагать хозяйственные строения, жилые дома. Лучше, чтобы их окна выходили на юг или юго-восток.
На схеме, которую вы будете рисовать, нужно отметить все затененные углы. Для этого в восемь утра выйдите на улицу с рисунком и заштрихуйте на нем затенения. В полдень и вечером повторите действия. В каждый временной промежуток меняйте направление штриховки. Самая густая тень там, где встречаются три штриховки, умеренная — где две.
Отметьте на плане геодезические показатели
На миллиметровку наносят также инженерные коммуникации и места с высоким уровнем грунтовых вод. Это нужно, чтобы вы не посадили растения в неудачном месте. Например, дерево с сильной корневой системой может разрушить водопроводную трубу, а розы над грунтовым потоком просто не будут расти.
На самых высоких местах, как правило, обустраивают дом с хозяйственными постройками. Так вы обезопасите фундамент от подтекания. Если земельный надел находится в низине, сначала нужно спланировать дренаж. Это может быть система колодцев с трубами или неглубокие канавы (выкладывают плиткой, геотекстилем). Чтобы дренаж работал, нужно соблюдать три правила:
- Правильный уклон канав с заглублением на 3 см каждые 10 м.
- Отсутствие горизонтальных отрезков длиннее 5 м.
- Отсутствие обратного тока.
Учтите на плане нормативные расстояния
В этом заключается сложность проектирования — по правилам разные объекты должны находиться на определенном расстоянии друг от друга.
- Дома из бетона, кирпича — 6 м.
- Здания с перекрытиями из горючего материала — 8 м.
- Деревянные коттеджи — 12 м.
Эти три норматива гарантируют пожарную безопасность.
От жилого дома до других построек
- Уличный туалет — 12-15 м.
- Баня — 8 м.
- Сарай с живностью — 8 м.
- Другие хоз.постройки — 4 м.
Это рекомендации, которые желательно выполнять, но необязательно.
От границ с соседями до
- Дома — 3 м (не менее).
- Сараев с животными — 4 м.
- Обычных сараев — 1 м.
- Высоких деревьев — 4 м.
- Кустарников — 1 м.
Большое значение при планировании расположения построек имеют
- строительные нормы и правила
- правила пожарной безопасности
- площадь территории и ее ландшафтные особенности
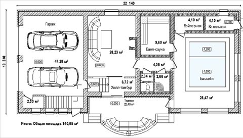
Правила зонирования участка 15 соток с примерами
Размещение дома прямо у въезда считается наиболее удачной: главная постройка находится сразу за оградой первой линии, благодаря чему значительная часть приусадебной территории скрыта от чужих взглядов. На переднем плане делают гараж или стоянку для автомобиля, а сад располагают за пределами дома. Там же устраивают летнюю кухню, баню и зону отдыха. Ниже — участок 15 соток с примерами такой планировки, и фото с домом.
Чтобы добиться максимального удобства, нужно максимально уменьшить расстояние между всеми объектами и одновременно разместить их так, чтобы они не мешали и не создавали помех. Берем листок бумаги и рисуем схему.
Схема, как распланировать участок 15 соток
Можно воспользоваться онлайн-планировщиками.
- Сначала обозначаем место въезда.
- Затем делим листок на четыре блока — так будет легче понять, где расположить дачный дом и вспомогательные постройки, где посадить деревья и кустарники, где устроить сад, грядки, место для отдыха.
- Под дом отводим северную часть, там же определите место для гаража и бани. Гараж лучше поставить рядом с въездом, недалеко от дома.
- В южной части распланируйте хозяйственную, садово-огородную зоны, места для отдыха, игровую площадку и т.д.
Дом по центру
Главную постройку можно расположить практически по центру прямоугольной территории, на расстоянии примерно 10-15 метров от въезда. Что это дает? Все необходимые зоны — место для автомобиля, отдыха, сада, клумб находятся рядом с загородным домом. А также нет проблемы узких территорий, которые обычно получаются, когда главная постройка расположена сбоку.
Такая планировка участка 15 соток подходит для прямоугольной формы и позволяет использовать вторую часть территории для отдыха, например, расположить там детскую площадку или террасу для принятия солнечных ванн. Фасад дома обращен на запад, поэтому вторая часть всегда освещена утром, когда не так жарко, а днем хорошо затеняется.
Дом в глубине сада
Еще есть вариант поставить дом ближе к дальней части земельного участка и окружить деревьями, чтобы он утопал в зелени. Такое размещение позволяет уменьшить лишний шум, а также уменьшает количество грязи и пыли с улицы. Можно разбить перед домом красивую лужайку, цветник или высадить кустарники.
Обследование территории
Что значит провести анализ территории и какие данные вам понадобятся для разумного планирования участка?
- Форма дачного участка
- Ориентация по частям света
- Наличие уклона
- Уровень грунтовых вод
- Характер почвы и её кислотность
Стандартная форма дачного участка — прямоугольная. Если вам достался участок треугольной, трапециевидной или Г-образной формы, не спешите расстраиваться. Особенности нестандартной формы участка можно легко превратить в достоинства, применив творчество и некоторые знания ландшафтного проектирования.
Ориентация по сторонам света — важный параметр при выборе места для дома, построек и расположения растений. Определить стороны света и нанести их на план, — первое, что необходимо сделать, начиная планировать участок.
Наличие уклона ярко выражено, едва заметно или у вас идеально ровный участок? Если территория с перепадом высот, необходимо определиться с выбором: выравнивать участок или укреплять склон. На участке с уклоном необходимо грамотно разместить дом и провести мероприятия, укрепляющие грунт.
Уровень грунтовых вод — необходимая информация для строительства зданий и посадок растений. Возможно, потребуются работы по обустройству дренажа на участке. Если вы не готовы погружаться в инженерные тонкости дренажной системы, на этом этапе работ стоит пригласить специалистов по строительству. Это поможет избежать сюрприза в виде бассейна в подвале по весне.
Выяснить характер почвы и её кислотность важно для правильного подбора растений и обеспечения им комфортных условий для роста и плодоношения.
Только после тщательного обследования территории, можно приступать к созданию эскизного плана дачного участка. Частично анализ территории можно выполнить самостоятельно, на какие-то работы придется пригласить специалистов.
Правила посадки и ухода за растениями
Иногда требуется визуально изменить форму территории, и сделать это можно с помощью правильной рассадки растений. Вблизи сажаем цветы с мелкими листьями и цветками, а за ними — более крупную, массивную зелень. Так же и с деревьями: на дальнем плане сажаем деревья большого размера, на ближнем — низкие кустарники. Так получится иллюзия, что усадьба имеет более квадратную форму.
Прежде чем вы создадите сад своей мечты, подумайте о том, как вы будете за ним ухаживать. Ведь осенью после листопада придется убирать листья, что очень хлопотно. Поэтому лучше не сажать слишком высокие деревья — дубы, клены, березы. Но если вы все же поклонник именно этих сортов, то тогда оставьте пространство под ними свободным и не высаживайте там кустарники, с которых сложно удалять упавшие листья. Ели и сосны тоже требуют особого внимания: они очень быстро вырастают, поэтому их нужно вовремя обрезать, чтобы они имели красивый, декоративный вид.
Видео обзор хорошего ландшафта
Еще на этапе проектирования следует определиться: из чего будут возводиться стены. Особо много вопросов возникает при выборе стройматериала для дома с баней и гаражом под одной крышей. Это связано с разными эксплуатационными характеристиками каждого сооружения:

Часто комбинируют несколько видов материалов для различных сооружений. Но для этого необходима качественная привязка пристроек к основному зданию.
Расположение построек на участке: дома, бани, сараев, гаража и других построек важно учитывать специальные нормы, регламентирующие расстояние между ними и другие параметры. Руководствуясь предлагаемыми советами, вы избежите ошибок и сможете грамотно организовать пространство на участке.
Какой проект выбрать
Выделяют два основных фактора, влияющих на выбор конструкции дома и стройматериалов для возведения: возможности бюджета, размер участка. Строительство жилья – затратный проект, поэтому некоторые идут по упрощенному пути и возводят поэтапно, начиная с . Но не экономят на фундаменте. Делают его с учетом планируемых нагрузок в дальнейшем.
Если бюджет позволяет, то лучше построить двухэтажное жилье. Оно будет более компактно размещаться на участке, сохраняя при этом максимальное количество полезной площади.
Позволяет располагать баню на первом этаже, а гараж в качестве пристройки. Но настоящую популярность получили дома с гаражом, совмещенным с баней. Компактность сооружений дает возможность сэкономить место для зоны отдыха, огорода. К тому же в таких комплексах есть прямой выход из гаража и бани в дом.

Вариант планировки дома с гаражом и с баней
А в дальнейшем возможна или второго этажа над этим хозяйственным блоком. Преимущество комплексов неоспоримо, что наглядно показывают представленные фото таких объектов. Нередко приобретается участок с домом. И в этом случае возможно совмещение его с баней и гаражом, но затраты уже будут значительно выше.
Как распланировать участок 10 соток
Когда вы начнете распланировывать приусадебное хозяйство, учитывайте его геометрию.
Как обыгрывать разные формы наделов
- Прямоугольная. На вытянутой местности объекты группируют в отдельные функциональные зоны. Например, постройки занимают северную часть, а огород с садовыми цветами — южную. В центре лучше ничего не размещать, чтобы осталось больше места для передвижения. Все объекты должны быть смещены к границам.
- Треугольная или трапециевидная. Дизайнеры советуют повторять направление, заданное межеванием. Скошенные линии в комбинации с прямыми придают ландшафту динамику, экономят место. Чтобы расположить вход в жилое помещение вдали от ворот, постройте диагональную дорожку. Пространство рядом с дверью будет более приватным.
- Квадратная. Основное здание можно разместить в центре, а по периметру невысокие вечнозеленые или плодовые деревья. Для других объектов также хватит места.
- Г-образная. Выступающую часть используйте как зону отдыха. Там устанавливают баню, беседку. Здания обычно размещают в углах.

Маленькие загородные владения можно визуально расширить, если разместить здания по диагонали. Территорию с неправильными очертаниями сглаживают клумбами, цветниками. Такими же приемами обыгрывают круглые границы. Конечно, эти рекомендации общие, чтобы было от чего отталкиваться. В реальности все зависит от исходных данных территории: ее затененности, соседей и других особенностей. Варианты планировок участка 10 соток на схемах.
Правила установки жилого дома
Правильное расположение зависит от условий на территории. Лучше всего, чтобы здание было построено подальше от дорожного шума. Бывает, что такой возможности нет. В этом случае перед окнами высаживают невысокие деревья. Нужно учитывать тень, которую отбрасывает постройка. Она не должна мешать растениям. Если у дачи треугольная, трапециевидная или изогнутая форма, а дом планируется большим — выберите проект с ломаными линиями. Он вместит больше комнат, будет лучше смотреться.
Где обустроить въездную зону
Площадь 10 соток предполагает, что на ней уместится площадка для автомобиля. Это может быть гаражное помещение или просто навес из поликарбоната у ворот.
Что делать с садом и огородом
Ландшафтные дизайнеры не рекомендуют высаживать на 10 сотках больше 15 саженцев. Учитывайте перспективу их роста — размеры корневой системы, крон, высоту. Слишком плотные посадки превратятся в непролазные джунгли, за которыми сложно ухаживать самостоятельно, затенят другие растения.
Цветники создайте на наиболее ровных, хорошо освещенных местах — так за ними будет легче ухаживать. Вода легче впитается в грунт, а ветер не выдует из почвы влагу. Важна близость к поливу. Южные стены жилого дома часто прикрывают затеняющими кустарниками, небольшими деревьями. Любой отрезок земли должен быть использован. Там, где нет солнца, можно высаживать папоротники, мхи, барвинки, страусники, хосты.
Когда общий план дачи будет готов, начните детально прорабатывать озеленение. Составьте список растений, которые хотели бы видеть, сопоставьте с условиями: дренаж, грунтовые воды, инсоляция, тип почвы. Разметьте на миллиметровке каждый саженец и пометьте его цифрой или названием, если хватает места.
Куда поставить хозяйственные постройки
Обычно их располагают вдалеке от дороги, обсаживают деревьями, диким виноградом или другими вьющимися растениями. Под важное для ежедневной жизни здание можно использовать придомовую территорию.
Где обустроить место для отдыха
Если позволяет оставшееся место, беседки и другие площадки для отдыха лучше размещать в глубине сада, вдалеке от дороги и соседей. Но бывает так, что окна дома выходят на закрытое пространство. Например, на треугольном участке или когда есть высокий забор. В этом случае удобнее именно этот отрезок земли.
Как разграничить пространство
Все перечисленные выше постройки и ландшафтные объекты нужно визуально отделить друг от друга. Природной границей может стать возвышенность или водоем. Искусственный разделитель — дорожки. Их нужно спланировать так, чтобы добираться до любой стороны было легко.
Они необязательно должны быть прямыми. Такой вариант считается идеальным, но ведь все случаи разные и то, что удобно на прямоугольном отрезке земли, будет мешать на круглом. Действуйте по методу «народной тропы». Проследите как вам комфортнее передвигаться по территории и там проложите дорожки.
Правильное расположение котельной
Котельная должна располагаться на отдалении от жилого дома. Так надежнее в плане пожарной безопасности, а также с точки зрения экологичности, так как сгорание топлива сопровождается выделением вредных газов и копоти. Также в целях безопасности все электрооборудование, задействованное для функционирования котельной, должно быть установлено за перегородкой, в отдельном помещении. Это необходимо для защиты электроприборов и устройств от перегрева при работе отопительного котла.
Стандартные схемы для планировки 10 соток
Первый вариант представляет собой универсальный прямоугольный загородный участок, на котором есть место для отдыха и огород. Сразу после ворот начинается автостоянка. Рядом с ней — жилое здание с небольшой детской площадкой. Игровая зона в этом случае находится на виду и в то же время на небольшом отдалении от дороги, что хорошо. Здесь же можно разместить мангал, беседку.

Вдоль всей территории с восточной стороны проходит тропинка. В самом конце расположены туалет, баня, сарай для инструментов, живности, другие постройки. В середине — грядки, сад. Овощные и декоративные растения могут быть разграничены, но лучше совмещать их. Это и красиво, и практично, так как цветы часто помогают в борьбе с вредителями. По периметру ограждения высажены кустарники с деревьями.
Во втором варианте упор сделан на дачу как место для отдыха. Выращивание полезных культур там почти не рассматривается. Удобно делать такую планировку на квадратных или круглых участках. Дом строят в центре или немного смещенным в сторону. Он окружен садом, другими объектами. В нем есть терраса или веранда и встроенный гараж. Таким образом на открытой территории можно создать уютный, скрытый уголок. От ворот к дому ведут две дороги:
- Гравийная или бетонная. Для проезда автомобиля.
- Узкая декоративная из любого материала. Пешеходная.
За главным зданием есть беседка, закрытая живой треугольной изгородью. Чуть дальше — баня и туалет. Так как участок по периметру окружен достаточно высокими деревьями и растениями, выращивание овощей или животных будет затруднительным. Для вторых просто не предусмотрен сарай. При желании им можно заменить баню.

Стили планирования
Выбрав стиль ландшафта, придется не мало поломать голову над проработкой деталей. Особенно, это касается восточного и средиземноморского стиля. К примеру, если планируется возвести загородный особняк с колоннами, — придется подумать и о внешнем виде других строений.
Они должны гармонично вписываться в общую концепцию дизайна. Древесные насаждения, кустарники и цветы также должны подбираться в соответствии с выбранной стилистикой. Все декоративные элементы (освещение, дорожки, лавочки, фонтаны или пруды) должны подчеркивать изящность выбранного стиля, а не портить его.
Стилистика загородной территории может изменяться, если у ее владельцев имеются домашние животные, которые будут проживать и резвиться в саду. Не получится разбить большую клумбу с гладиолусами или организовать розарий, если на участке появится энергичный пес.
Он в мгновение ока истопчет и изроет всю красоту палисадника вокруг коттеджа и других строений. Чтобы этого не случилось — потребуется подумать о дополнительных ограждениях или живых изгородях.

варианты с баней и гаражом
Регулярный стиль
Ландшафтный дизайн 6 соток в регулярном стиле должен иметь четкие линии и строгую симметрию. Четкость линий и геометрических фигур наблюдается во всех элементах: живых изгородях, топиариях, дорожках, расположению и размерах строений. Главной особенности регулярного ландшафта является наличие в проекте водоемов и водопадов.
Ландшафтный стиль
Его еще называют природным. Главной особенностью создания данной стилистики – сохранение естественного вида. При обустройстве территории используются природные материалы или приближенные к ним, имеющие текстуру и цветовую гамму, приближенную к тонам строений. При оформлении часто можно увидеть камни или декорации из них.
Смешанный стиль
В последнее время комбинированный стиль становится более популярным, так как при его организации не требуется строго выполнять условия зон определенной стилистики. Дизайн дачи 6 соток своими руками при смешенном стиле проще всего создать, так как каждую зону можно обустроить индивидуально.
Оформление территории может совмещать в себе несколько схожих стилей, которые не противоречат друг другу.
Этапы планирования

600 кв.метров — достаточно, небольшой. По этой причине нужно внимательно относиться к планировке, чтобы продумать каждую деталь территории. Дизайн дачного участка должен быть не только красивым, но и комфортным. Как обустроить дачу небольшой площадью правильно?
Соблюдение всех нормативов.

Схема расположения объектов
Учитывая все нормы, благоустройства дачи станет проще. Не соблюдение нормативов приведет к лишним финансовым затратам – штрафам.
Планировка должна быть поэтапной

Как расположить объекты
- сбор информация о территории (для каких целей приобретался загородный участок, тип жилья, постройки, другие пожелания владельцев и членов их семьи);
- изучается территория (грунт, рельеф, вид участка и размер границ, наличие насаждений, примыкающая земля и насаждения).
- Определение формы с замером каждой стороны.
- Определение о месте, где будет находиться дом.
- Зонирование с размещение основных зон.
- Создается схема земли 6 соток.
- Составляется план территории, схемы подробные разрабатываются по каждой зоне
- Составление сметы на проект.
Как декорировать участок
Общее правило — разделить участок на несколько зон: обрамляющую, внутреннюю и декоративную. Например, обрамляющей может стать живая изгородь, которая отделит территорию от любопытных глаз соседей. Внутренней будет та, что примыкает к дому. Под декоративную правильно будет отдать ту землю, куда чаще всего падает взгляд.
Дорожки
Подумайте, как будут располагаться дорожки от въезда к дому, к гаражу, к кустарникам. Их лучше делать извилистыми, имитирующими тропинки в лесу, но так, чтобы можно было везде легко пройти. Не рекомендуется делать одну длинную дорожку вдоль всей усадьбы, иначе визуально она растянет его и одновременно сузит.
Обустройство склона
Такая территория потребует особого внимания. Но не стоит сразу думать о полном выравнивании всей поверхности. Можно сделать ступенчатые зоны с устройством подпорных стенок. Правда, каждый уровень должен быть обеспечен системой отвода сточных вод. Зато есть и плюсы: можно устроить красивый рокарий или альпийскую горку. И помнить, что на склоне почва сохнет быстрее, поэтому ей будет требоваться дополнительный полив.
Живая изгородь от ветра
Если у вас открытая земля и часто дуют сильные ветры — не беда. Сделайте ветрозащитные живые изгороди из кустарников. Они помогут ослабить скорость потоков и даже изменить их направление. Очень красивыми получаются изгороди из хвойных деревьев, которые сажают очень плотно друг к другу. Можно сделать ажурную изгородь из лиственных сортов с кудрявой кроной.
Клумбы
Ни один участок не будет полноценным, если не сделать на нем красивые цветочные клумбы. В зависимости от места, которое для них отведено, используют разные виды этого декора. У дома лучше всего смотрятся бордюрные клумбы, вазоны, моноклумбы. Для стен подойдет вертикальный вариант, вдоль дорожек — бордюрный. Красиво смотрятся групповые посадки квадратной или треугольной формы. На одной клумбе может быть от 10 до 20 видов цветов. Чтобы они цвели как можно дольше, для компоновки лучше воспользоваться календарем посева семян и цветения.
Традиционные грядки можно превратить в цветники, и сделать это очень просто! Как пример, высадить душистые растения прямо в контейнеры в визе ваз, корзин, ящиков, декоративных горшков. Расположить их можно в любой зоне — у входа в дом, на лестнице, в глубине сада. Благодаря мобильности их легко перемещать из одного места в другое, составлять красивые композиции.
Декоративный пруд
Приусадебный двор можно сделать особенным, если оборудовать небольшой искусственный водоем. Он гармонично вписывается в ландшафт и добавляет изюминки. Реализовать такой проект самостоятельно будет сложно, его лучше доверить профессионалам, которые сделают пруд с учетом всех правил и нормативов. Правда, не бесплатно.
Планировка участка. Выбор дизайна
Важно:
Главное сразу определить, где и что будет располагаться.
Каждому хозяину трудно, да и не нужно давать готовые рецепты по планировке участка, особенно по его декоративному оформлению. Тут каждый волен поступать на свой вкус. Ведь даже расположением дорожек — не прямолинейных, а по диагонали или даже, если позволяют условия, с несколькими закруглениями — можно создать уют.
Довольно распространенная ошибка начинающих — совмещение на одной и той же площадке деревьев, ягодников, цветника и даже огородных грядок. Уже через несколько лет выяснится, что они начали мешать и вредить друг другу.
Вариантов рациональной планировки существует много и вряд ли стоит отдавать предпочтение каким-то отдельным из них. Важно лишь ориентироваться на следующие требования, предъявляемые здравым смыслом, биологией растений, санитарными нормами и правилами добрых людских отношений.

Нюансы планирование по форме
Форма территории очень важный момент, когда создаешь проект дома на 6 сотках с постройками и строениями. На одних из них зонировать пространство легче, на других потребуется потратить больше времени.
Узкий прямоугольный участок

Узкий прямоугольный — схема 6 соток
Проектирование 6 соток такой формы достаточно сложно. Трудности возникают при размещении построек на территории. При проектировании такой участок чаще всего разбивается на 2 равномерные зоны, на которых создается свой ландшафт с отдельными зонами и строениями.
Квадратный

Форма симметричного квадрата или участок, приближенный к этой форме проще всего проектировать. На нем легче всего разместить план сада с домиком. Зоны получаются более компактными и равномерными.
Треугольный правильной или не правильной формы

Треугольные территории встречаются редко. Сложная форма легко поддается зонированию пространства, дает возможность создать нестандартный дизайн участка с домом.
Участок на склоне

Планирование на склоне
Обустраивать холмистую территорию – сложновато, но вид со склона открывается неповторимый. Главным нюансом в работе на таком участке – необходимость укреплять грунт, чтобы строения и насаждения не «сползли» вниз. Постройки и дом, обычно, на таких территориях располагаются на верху склона, а сады и огороды размещаются ниже.
Сложный многоугольник

Чаще всего такой участок имеет Г-образную форму. С одной стороны такая территория имеет сложный вид, но с другой стороны – упрощает задачу зонирования. На одной прямой части можно расположить жилое строение с зоной отдыха, въездом, детской площадкой и небольшим цветущим палисадником и фруктовыми насаждениями, а на другой – баню, огород и хозяйственную зону.

Круглый участок

Проектировать такой участок очень сложно, так как приходится долго ломать голову над тем, как разместить разные объекты в зонах в форме овала, круга или эллипса, создав единую территориальную композицию.
Пруды и бассейны
Обустройство дачи, схемы которой разрабатываются, не всегда позволяют разместить полноценный бассейн, но небольшой пруд с рыбками или растениями может вписаться в проект.
Организация водоема требует больших вложений, т.к. требуется специальное оборудование, тенты для укрытия, а также материалы для его организации. Дизайны прудов:



Необычные распланировка дачного участка 6 соток, схемы, фото



Варианты расположения объектов
Где будет стоять дом
Пересмотрев в интернете множество фото планировок дачных участков, не спешим рисовать цветники и беседки. Сначала рассмотрим разные варианты построек и составим свою схему.

Место для дома определяем с учётом формы участка, сторон света, планируемых построек и ландшафтных зон. При выборе площадки для дома не забываем про правила размещения жилого строения по границам участка, а также планируем размещение водопроводного колодца и септика. Перед тем, как рисовать на плане домик, необходимо внимательно прочитать правила расположения объектов водопровода и канализации на дачном участке.
Зная внутреннюю планировку дома, размещаем его на плане таким образом, чтобы большие окна гостиной, веранды и столовой выходили на юг, юго-восток или юго-запад. В этом случае в вашем доме большую часть времени будет солнце.
Ориентируя жилое строение по сторонам света, учитываем, что часть территории будет в тени от дома. В этом месте лучше не планировать сад и огород, а вот теневыносливым и редким тенелюбивым растениям здесь будет очень комфортно.
На узких вытянутых участках дом лучше разместить с короткой торцевой стороны, а на участках треугольной или трапециевидной формы, — фасадом к широкой границе участка.
Сложнее обстоит дело с размещением дома на участках с уклоном. Независимо от того, какой способ посадки дома вы выберете: заглубление цоколя или выравнивание площадки под дом, необходимо предусмотреть отвод грунтовых вод.
Тщательно изучив правила, приняв во внимание особенности участка, мы разместили на плане жилой дом и коммуникации. Теперь переходим к планированию хозяйственных построек, зоны отдыха, барбекю, детской площадки, сада и огорода.
Преимущества и недостатки домов с баней и гаражом
Выделяют несколько основных достоинств таких комплексов:

К недостаткам относят дополнительные затраты на гидроизоляцию и утепление смежных стен.
Размещение огородных грядок

Огород на участке можно планировать любой формы, главное чтобы было удобно передвигаться с инвентарем или тачкой. Однако, есть общие законы и принципы, с которыми следует считаться, чтобы грядки приносили хороший урожай:
- Все овощные культуры предпочитают солнечные места. только некоторые могут мириться с полутенью. Поэтому около ограды или в тени дома можно высаживать только лук на перо и некоторую .
- Сосуществование разных культур. Нужно учитывать какие овощи терпят соседство друг друга. Для этого перед посадкой следует ознакомиться с этими особенностями.
- Учет предшественников. Сможет ли растение развиваться на месте другой культуры. И не стоит высаживать одни и те же овощи на одно место в течение нескольких лет.
- Максимальное использование огородной площади. Часть грядок можно расположить под деревьями. Для этого стволы ограждают и насыпают плодородную почву.
- Если места недостаточно много, то овощи можно высаживать в места, где освещенность солнцем наблюдается с обеда до сумерек.
- Не стоит высаживать огородные культуры на участки со сквозняками и застоем влаги.
- Грядки следует поднимать на высоту в тридцать сантиметров, путем засыпания плодородного грунта и окантовать бордюрами.
- Культуры, склонные к плетению рекомендовано выращивать в круглых грядках с каркасной пирамидой в центре. Они будут оплетать опору и не займут много места.
Распланировать участок грамотно поможет следование всем правилам и рекомендациям. В результате удастся создать участок, отвечающий всем потребностям членов семьи, учитывая их пожелания. На таком участке можно будет полноценно отдыхать после рабочего дня и принимать гостей.
Разместить на участке дом, баню и гараж так, чтобы осталось достаточно места для выращивания овощей и фруктов, зоны отдыха с и детской площадки – задача не из легких. А жилье возводится на годы и хочется сразу все предусмотреть. Так, чтобы в момент строительства не столкнуться с множеством тонкостей, которые обойдутся в «копеечку», да еще и отодвинут время заселения.
Вариант планировки участка с домом, баней и беседкой
Или загородного жилья, многие сталкиваются с вопросом: «А что дальше?» Простой вариант – обратиться в архитектурное агентство, которое решит все проблемы, но при этом придется смириться с существенными затратами. Более сложный, но интересный – самому подготовить проект, получить разрешение на строительство. Начать следует с . При этом продумать для чего будет использоваться земля. Существует три подхода в освоении участка:

Определившись с назначением, берем и приступаем к зонированию:

На этапе зонирования участка определяются с типом будущего дома. Будет ли он единым строением с баней и гаражом или их планируется размещать отдельно.
Программы для 3D проектирования

Простыми программами считаются
- Garden Planner— простая программа для создания проекта участка. С ее помощью можно за несколько минут разместить все необходимые объекты на территории. Минусом программы является интерфейс – он на английском языке, но, даже, не зная его можно быстро разобраться и создать проект участка в 2D-формате, изменяя размеры. Стоимость инструмента: 34$.
- FloorPlan 3D – еще одна несложная в интерфейсе программа для проектирования земли, зданий и офисов, позволяющая создать проект в 3D-формате, изменяя размеры, цветовое решение и подбирая материалы. Можно рассчитать ориентировочную смету на все виды работ. Инструмент русскоязычный, что облегчает адаптацию в нему. Подойдет для начинающих и профессиональных проектировщиков. Стоимость программы составляет: 49.99$.
- X-designer – простой инструмент для проектирования участков на русском языке. Подойдет для проектировщика без особых навыков. Можно создать проект в 3D-формате или с видом сверху. В интерфейсе имеется возможность подобрать рельеф, а также увидеть готовый вариант при смене сезонов или времени суток. Стоимость программы: 229 рублей.
Профессиональные версии
- Наш Сад Кристалл – несложный проектный инструмент с интерфейсом на русском языке. В данный момент доступна 10-я версия, до этого была 9-я. В программе есть возможность создать проект участка в 2D или 3D-формате. Содержит в себе более 17000 видов растений, среди них насчитывается около 2000 разновидностей роз. Интерфейс позволяет одновременно указать более 20 параметров, включая: срок жизни растительности, вид почв, скорость роста насаждений и другие. Программа позволяет воспользоваться реальными фотографиями с территории, которую можно редактировать. При создании проекта можно в программе разместить: дорожки, декорации, строения, пруды, а также указать рельефность. Стоимость инструмента: 3500 рублей.
- Sierra LandDesigner 3D – простая программа по проектированию загородных владений. Имеется русифицированная бесплатная версия. Инструмент позволяет создать ландшафтный дизайн в 2D или 3D-формате.
- Punch Home Design – инструмент со средней сложности интерфейсом на английском языке. Позволяет создать визуализацию внешнего вида строений, всего и даже интерьера. В процессе работы есть возможность подключаться к другим инструментам: Sketchup и AutoCad. Позволяет создать подробный проект с интеграцией всех объектов в 3D-формате. Стоимость инструмента: 39,99$
- SketchUp – комплексная бесплатная 3D-программа на русском языке со средней сложности интерфейсом. Позволяет смоделировать загородный участок с различными строениями и объектами, но подходит программа в большей степени для проектирования ландшафтного дизайна.
- Realtime Landscaping Architect – профессиональная программа со сложным интерфейсом на английском языке. Она подходит для проектировщиков, а также ландшафтных дизайнеров. Позволяет создать 2D и 3D-проекты. Инструмент позволяет детально прорисовать каждый объект. Программа имеет несколько пакетов с базами. В каждом из них содержится от 10 000 до 16 500 различных объектов, половина из которых – это растения. Инструмент оснащен разделом по созданию презентаций, в которых можно проследить рост насаждений, их поведение при попадании на них теней на протяжении суток. Стоимость программы: 79,95$.
Где поставить гараж
При строительстве отдельного гаража расстояние между ним и основным домом должно быть как минимум 4 м. Это отражено в противопожарных и санитарных нормах. А между жилыми постройками должно быть не меньше 6-15 м.
Чтобы выбрать площадку под гараж, нужно учесть, что напротив него будет организована подъездная дорожка. Для безопасности проезда в этом месте должен быть широкий обзор, а выбранной площади должно быть достаточно для маневрирования автотранспорта. Под гаражом должна быть ровная площадка, имеющая небольшой уклон. Благодаря уклону будет быстрее удаляться вода после дождя или таяния сугробов. Желательно выполнить мероприятия по осушению территории вблизи гаражной постройки. Это предотвратит затопление гаража и порчу автомобиля, хранящихся в помещении инструментов.
Как расположить баню
Лучше всего установить ее подальше от дороги. Между баней и соседними участками непременно должна быть изгородь или полноценный забор. Также желательно сделать ограждение между баней и другими постройками. Если баня строится вблизи реки или озера, расстояние между постройкой и водоемом должно составлять около 15 м, поскольку сточные воды, образующиеся в бане, загрязняют прилегающую территорию.
Правильным решением считается возведение бани на возвышенности. Это дает возможность обходиться без специальной канализации, так как вода будет вытекать сама.
Иногда баню совмещают с остальными постройками или с жилым домом. При обустройстве бани, примыкающей к дому, лучше выбрать конструкцию финской сауны. В такой бане меньше влаги, а температура более высокая, за счет чего стеновые материалы быстро высыхают и не гниют.
Варианты планирования (фото)
Располагаем объекты: баня, гараж, небольшой огород и зона отдыха. Обычно центром территории является жилой дом, а уже от него уже прокладываются дорожки к определенным зонам, а вдоль них располагаются газон, клумбы или кустарники и древесные насаждения.
Несколько примеров: как организовать небольшую территорию?

проект с верху


вот такой вид расположения


с беседкой и прудом

Баня, беседка, бассейн

проект с домом


проект на 2 жилых дома





план с учетом огорода

интересное распределение объектов



дача — обустройство

как правильно все разместить





Дизайн с теплицей
Обустроить шесть соток, грамотное зонирование, варианты озеленения – все это требует времени. На первый взгляд – набросок сделать легко, но детально разместить каждое строение, дерево и куст – все это должно отвечать санитарным и пожарным нормам.
Сам себе ландшафтный дизайнер
Составить схему планировки дачного участка самостоятельно — увлекательная творческая задача. Даже если вы раньше никогда не занимались ландшафтным дизайном, сделать грамотную планировку самостоятельно — реально.
Если вы не уверены в своих силах, но непременно хотите создать планировку дачного участка самостоятельно, можно пройти обучение на факультете ландшафтного дизайна GeekBrains https://gb.ru/geek_university/landscapedesign
Обучение ландшафтному дизайну в GeekBrains даст все необходимые знания и навыки не только для создания безупречного стиля на вашем собственном участке, но и возможность приобрести востребованную перспективную профессию.
Преподаватели GeekBrains — практики ландшафтного проектирования, предоставляют студентам уникальную возможность получить помощь и подсказки от высоких профессионалов в ландшафтном дизайне.
GeekBrains гарантирует своим выпускникам трудоустройство по окончании курса. Диплом о профессиональной переподготовке открывает двери в увлекательный мир творчества специальности ландшафтного дизайнера.
Как расположить другие постройки
- от главной улицы не менее —— 5 метров
- от проездов и переулков не менее —— 5 метров
- расстояние от дома и других сооружений не менее —— 4 метров
- расстояние от дома до бани не менее —— 8 метров
- расстояние от гаража до забора не менее ——- 1 метра
Размещение строений на участке

- Фасад строения должен располагаться на участке в 5 метрах от линии начала улицы, а также не ближе 3 метров от проезда.
- От соседской границы (забора) дом должен находиться минимум в 3 метрах.
- Кровля должна иметь скат для схода осадков.
Как распланировать участок 6 соток? Нормы расположения «усадьбы» от других объектов:
Баня

Дизайн территории с баней. Площадь — 6,5 соток
Баня относится к числу хозяйственный строений. По этой причине должны соблюдаться нормы расположения строения:
- От дорожной линии баня должна находиться минимум в 5 метрах.
- От ближайшего окна дома (комнатного, кухонного или веранды) банное здание должно быть удалено на 6 метров.
- До соседского забора минимальное расстояние бани должно составлять 1 метр.
- Сход снега или же дождевых осадков не допустить на территорию соседей.
Важно! Рекомендуется удалять строение бани от дома на расстояние – минимум 8 метров.
Беседка

Беседка на небольшом участке
Обычно для зоны барбекю отводят небольшую территорию или объединяют ее с детской площадкой или садов. Беседка на участке или летняя кухня в ней занимает стандартно до 5 кв. м. Постройку следует разместить в 1 метре от соседского забора, от дома и бани расстояние – 1-3 м, а от улицы – не менее 5.
Парковочное место

Парковочное место под авто
Расположение парковки и гаража имеют аналогичные требования, что и требуется от других зон и строений: минимальное расстояние от забора соседей – 1 метр, а от дома – 6 метров. За ранее позаботьтесь об организации проекта автомобиля.
Важно! При строительстве гаража и парковки необходимо соблюсти все требования безопасности. Допускается располагать это зону вплотную по границе, примыкающей к улице, но сделать это можно только после согласования с кадастровыми службами.
Размещение особых объектов
По санитарным нормам нужно уделить особое внимание размещению колодцев или скважин, септиков, компостных ям и погребов.
- Удаление от дома и погреба до туалетов, сараев с птицей или мелким скотов – минимум 12 метров.
- Расстояние от дома и погреба до сауны, бани или летнего душа должно составлять минимум 8 метров.
- колодец с питьевой водой должен быть удален от септика, туалета и компостной кучи минимум на 8 метров.
Нужно учитывать при планировке и требования других строений, а также заборов и красных линий.
Зона отдыха
Обычно такая зона имеет компактный вид. Большую зону отдыха позволить не может участок 6 соток, размеры зоны чаще всего — от 5 до 10-12 кв. метров. Здесь располагается небольшая беседка, рядом песочница. Рядом с постройкой можно устроить небольшой искусственный пруд с рубками или без них.

Дом на участке с детской площадкой
Место для мангала должно быть выделено отдельно от постройки по технике пожарной безопасности. Расстояние от строений (включая дом) до мангала должно составлять минимум 3 метра. Также это касается и детской площадки – до мангала должно быть минимум 1,5-2 метра, рекомендуется от 5.
Освещение

Любая загородная территория требует освещение в вечернее и ночное время, проекты которых создают специалисты или владельцы самостоятельно, должны включать в себя данное оборудование. Смотрите варианты освещения тут.

Светильники для освещения
Выбор освещения зависит от его назначения:
- основное;
- декоративное;
- охранное.
- Для того, чтобы организовать подсветку калитки и дорожки можно установить небольшие фонари или же подвесить лампы.
- Для охранного оборудования подойдут светильники с датчиками движения или же оснащенные таймерами.
- В беседках или верандах можно организовать освещение нескольких видов (навесное и напольное).
- Освещение прудов и зон, которые хочется выделить, можно устроить с помощью светодиодных и накопительных ламп.

Важно! Организация осветительной сети требует внимания по сохранению целостности электропроводки и кабеля.
Советы по планировке дачного участка
Важным фактором при зонировании загородной территории — количество построек и их размерами. Также следует продумать: где будет размещаться дом. Зонирование небольшого участка производится с учетом особенностей обустройства каждой из зон.
Первоначально нужно решить вопрос: как расположить коттеджа на местности? Где будет вход? Отталкиваясь уже от этого можно спокойно перейти на планирование по зонам:
варианты планировки 6 соток с домом
- Дом – 20 кв. м.
- Гараж или паркинг – 8 кв. м. Размер позволяет расположить зону, примыкая к улице.
- Зона отдыха – 20 кв. м. Даже территория маленького участка дает возможность расположить в этой зоне беседку с мангалом, баню с небольшой верандой.
- Детская зона – 75 кв. м. Ее обязательно стоит включить в план 6 соток, если имеются дети. В черте детской площадки можно разместить песочницу, установить качели или турник, в летний период в ней же можно установить бассейн или батут.
- Хозяйственная зона с постройками для размещения на даче домашней птицы или животных, а также для хранения разнообразной утвари и инвентаря – 10-12 кв. м.
- Зона летнего санузла и душевой кабины – 5 кв. м.
- Огород и сад на шести сотках при грамотном планировании тоже могут разместиться – 320 кв. м. — используйте идеи по компактному размещению грядок
- Планирование дорожек. Декоративная отделка грядок
Проектировка участка 6 соток с коттеджем может иметь как индивидуальное зонирование, так и комбинированное. Все зависит от пожелания владельца загородной территории. Проведите все коммуникации до начала ландшафта.
Как разделить участок на зоны
Каким бы ни был участок по размеру: 4 сотки или 12 соток, правила ландшафтного дизайна предполагают разделение его на зоны. Жилая зона, въезд и парковка, зона хозяйственных построек, зона барбекю, отдыха, сад, огород и другие тематические участки, все их необходимо разместить грамотно, учитывая потребности всех жильцов, движение солнца, форму и размеры территории.
Рассмотрим планировку дачного участка прямоугольной формы.

Зона хозяйственных построек
По нормативам общая площадь застройки не должна превышать 30% от общей площади дачного участка. Даже если участок не большой, 5 или 6 соток, зону хозяйственных построек можно разместить таким образом, что ощущения тесноты не будет.
Хозблок лучше отнести в противоположную от жилой постройки часть участка, чтобы звуки работающих инструментов, мусор и запахи были подальше от дома.
Сарай, хозблок или баня должны гармонично вписываться в ландшафт, поэтому эти сооружения лучше спроектировать из тех же материалов, что и дом.
Если дачный участок 8 соток и больше, то территорию возле хозяйственных построек можно оформить композициями из декоративных деревьев, кустарников и цветников.
При планировке дачного участка, особое внимание уделяется зоне отдыха. Владелец участка в 10 соток и больше, может себе позволить отдельную зону для отдыха, расположив её подальше от хозяйственных построек и парковки.
Одно из главных условий размещения этой зоны — тень. Выбирая декоративные деревья, обеспечивающие тень на участке, лучше выбирать те виды, которые устойчиво зимуют в вашей полосе и имеют декоративный вид на протяжении всего года. В России это, например, ель, пихта, различные сорта туи и можжевельника.
Пруд с нимфеями, обсаженный по периметру ирисом болотным и ирисом сибирским выглядит декоративно, притягивая взгляд гостей, отдыхающих в тени ивы извилистой.

Небольшой участок в 4 сотки тоже имеет право быть красивым. Даже на таком маленьком пространстве можно предусмотреть декоративный водоём. Нет места для беседки — поставьте рядом с прудом скамейки и небольшой столик.
Зону барбекю удобно расположить недалеко от дома. Рядом можно соорудить беседку, обвитую нежно цветущим княжиком, клематисом или виноградом.
При планировке дачного участка не следует экономить на зоне отдыха. Помним, что главное назначение дачного участка, это возможность отдохнуть от суеты и напряжённого ритма города.
Детскую площадку также планируем заранее. Дети должны быть на виду и в безопасности, поэтому размещаем их владения перед окнами недалеко от дома и подальше от парковки и зоны въезда.
Растения, посаженные рядом с детской площадкой должны быть неядовитыми и не колючими. Редкие сорта и хрупкие растения лучше отнести от детей подальше.
Сад и огород
На дачном участке больше 12 соток можно выделить отдельную площадь под сад и отдельную под огород.
Ещё раз посмотрим на ориентацию по сторонам света участка, чтобы отвести огороду наиболее солнечное место. Планировка грядок, это тоже тема для творчества. Огород необязательно должен быть прямоугольной формы. Проявим фантазию и спроектируем грядки под клубнику и лук в виде солнца, а салаты и зелень посадим в высокие, удобные для обслуживания грядки.

На участке в 5 соток особенно не разгуляешься, поэтому можно сэкономить место под огород, предусмотрев в будущем вертикальные грядки.
Сад из плодовых и ягодных деревьев может стать настоящим украшением дачного участка, если его спланировать обдуманно. Рисуя деревья на плане, надо точно вымерять расстояние между ними, чтобы высокие деревья не затеняли низкие и не закрывали от солнца теплицу и грядки. Плодовые и ягодные деревья нужно сажать группами для более эффективного опыления.
Исследуя участок, мы выяснили тип почвы и её кислотность. Эти знания пригодятся при посадке сада. Голубика хорошо плодоносит в кислых торфяных грунтах, а вишня в кислом грунте не только не плодоносит, но и не растёт.
Смородину, малину и крыжовник, посадим по старинке по периметру участка. Особой красоты в этих кустарниках нет, отнесём их в дальний угол сада.
На дачном участке в 4-6 соток нет возможности выделить отдельную территорию под сад, поэтому размещаем на плане плодовые деревья точечно, используя свободные, подходящие для них места. С помощью линейки и циркуля вымеряем площадь кроны взрослой яблони или груши, и рисуем тень от растения, ориентируясь на движение солнца.
Для небольших участков очень удобно использовать колоновидные сорта плодовых растений. Места такие деревца занимают мало, а излишки яблок и груш не придётся утомительно пристраивать друзьям и соседям.
